 |

Siemens 3RW30… – Это серия малогабаритных цифровых устройств плавного пуска, специально разработанных для трехфазных асинхронных электродвигателей малой и средней мощности. Данные устройства осуществляют плавный запуск и плавную остановку электродвигателя. Более того, можно изменять время, в течение которого будут происходить плавный запуск и плавная остановка. Также поддается регулировке и уровень начального напряжения. Это дает возможность значительно снизить пусковые токи и избыточный пусковой момент во время запуска электродвигателя, тем самым, обеспечивая надежную защиту электродвигателя, механизмов технологического процесса, а также сети электропитания. Этот тип устройств плавного пуска широко используется в насосы,вентиляторы, станки, конвейеры, экструдеры, миксеры, компрессоры, кран-балки, лебедки и многих других применениях, где используются электродвигатели мощностью от 1,1 до 55 кВт включительно. За счёт двухфазного управления на протяжении всего разгона ток во всех трёх фазах поддерживается на уровне минимальных значений. Применение этих устройств снижает нагрузку на сеть электропитания, тем самым, продлевая ей жизнь.
Области применения:
- станки и конвейеры
- экструдеры и миксеры
- насосы и компрессоры
- вентиляторы и дымососы
- кран-балки и лебедки
- многодвигательные установки
Краткие характеристики:
- Напряжение питания - 380 В (трехфазное)
- Напряжение управления - 24-110 В AC/DC
или 110-230 В AC/DC
- Диапазон мощностей - 1,1–55 кВт (включительно)
- Встроенный шунтирующий контактор
- Уровень Начального напряжения - 40…100% от номинального напряжения
- Время разгона - 0…20 с
- Время остановки - 0…10 с
Органы управления:

ОПИСАНИЕ КОДОВ ДЛЯ ЗАКАЗА
Мощность электродвигателя
Рн, кВт, Uпит=380 В, 3Ф
|
Ток номинальный, А
|
Код устройства
|
Масса, кг
|
Двигателя
|
УПП
|
0,25 |
0,88 |
3 |
3RW3003-1CB54 |
0,207 |
0,37 |
0,98 |
0,55 |
1,5 |
0,75 |
2,0 |
1,1 |
2,5 |
1,5 |
3,5 |
3,6 |
3RW3013-1BB14 |
0,58 |
2,2 |
5,0 |
6,5 |
3RW3014-1BB14 |
0,58 |
3,0 |
6,0 |
4,0 |
8,4 |
9 |
3RW3016-1BB14 |
0,58 |
5,5 |
11,0 |
12,5 |
3RW3017-1BB14 |
0,58 |
7,5 |
14,8 |
17,6 |
3RW3018-1BB14 |
0,58 |
11 |
21,0 |
25 |
3RW3026-1BB14 |
0,69 |
15 |
28,5 |
32 |
3RW3027-1BB14 |
0,69 |
18,5 |
35 |
38 |
3RW3028-1BB14 |
0,69 |
22 |
42 |
45 |
3RW3036-1BB14 |
1,2 |
30 |
57 |
63 |
3RW3037-1BB14 |
1,2 |
37 |
69 |
72 |
3RW3038-1BB14 |
1,2 |
45 |
81 |
80 |
3RW3046-1BB14 |
1,71 |
55 |
100 |
106 |
3RW3047-1BB14 |
1,71 |
Примечания:
-
Коды для заказа приведены для устройств, эксплуатация которых предполагается при температуре не выше 40°С, при температуре от 40 до 50 необходимо выбирать УПП на один номинал старше, при температуре от 50 до 60 необходимо выбирать УПП на два номинала старше.
-
Для уточнения кодов заказа УПП для однофазных электродвигателей, двухскоростных электродвигателей либо электродвигателей с номинальным напряжением выше 380 В, обратитесь за консультацией к нашим специалистам.
-
Коды для заказа приведены для устройств с напряжением управления 110-230 В AC/DC; для устройств с напряжением управления 24 В AC/DC необходимо цифру 1 на предпоследней позиции в обозначении заменить на цифру 0. Например: 3RW3024-1CB04 – УПП для электродвигателя 5,5 кВт с напряжением управления 24 В AC/DC.
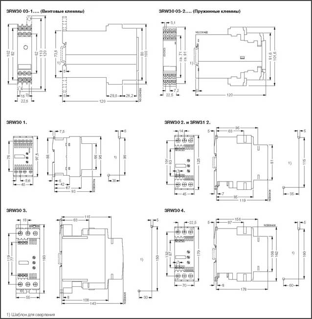
ГАБАРИТНЫЕ РАЗМЕРЫ

Мотор редукторы, преобразователи частоты и устройства плавного пуска отправляются транспортной компанией. По всем вопросам обращаться в офис
Мы всегда рады видеть у себя наших старых партнеров и ждем новых.
Доставка во все регионы России!
|
 |